Belangrijkste Kenmerken
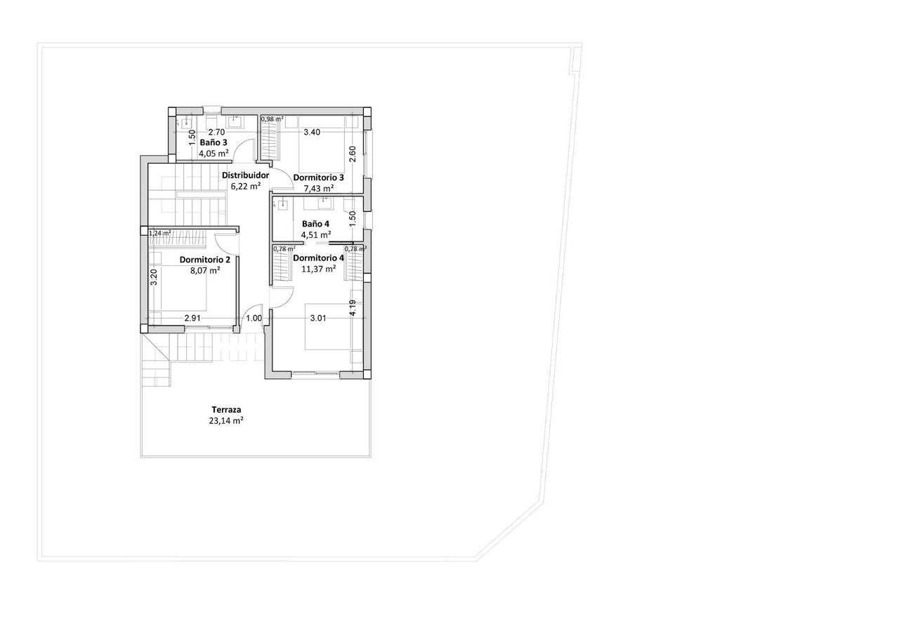
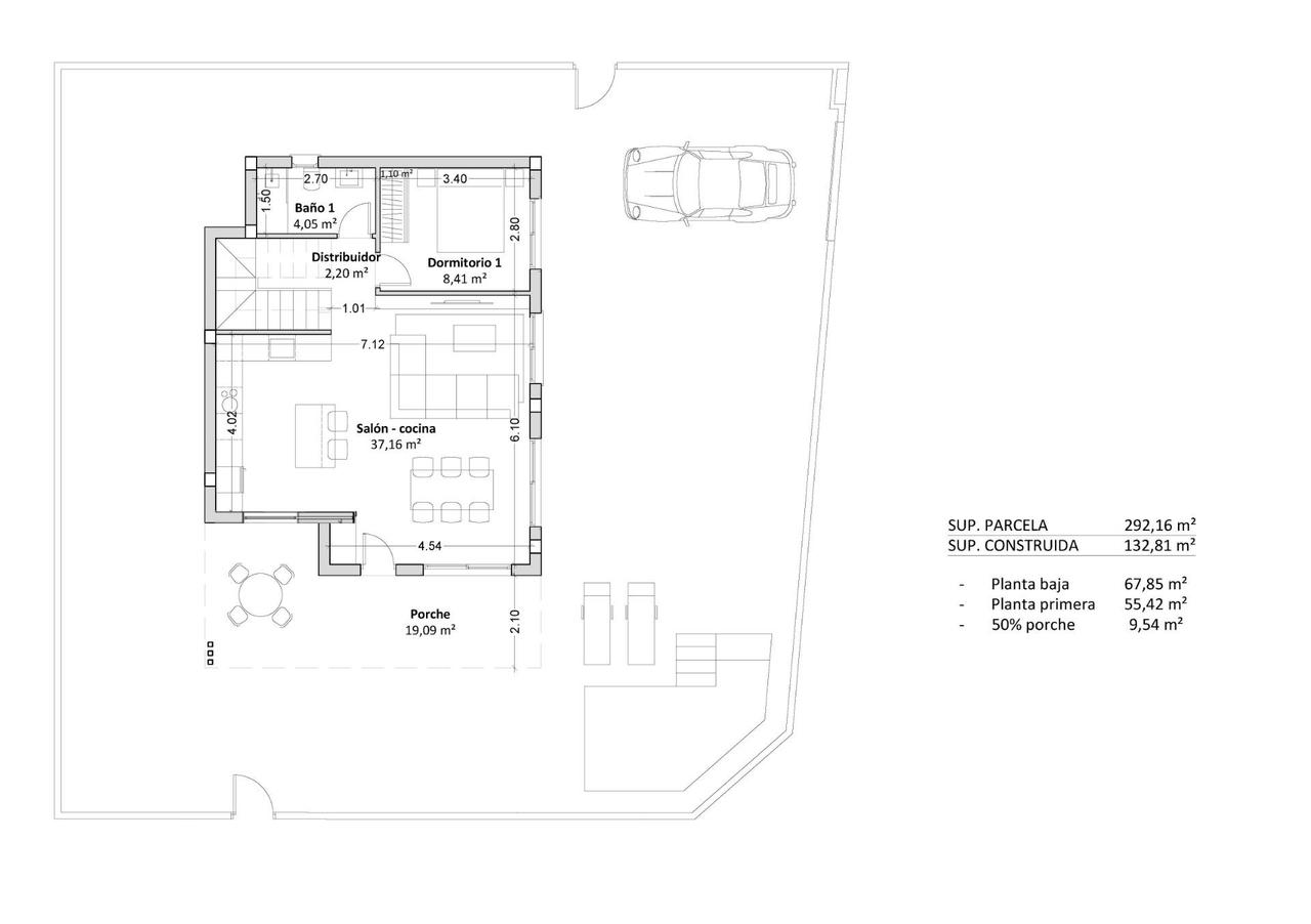
- 4 slaapkamers
- 3 badkamers
- 132 m2 bouwjaar
- 292 m2 parceel
- Zwembad : Yes
Omschrijving
NIEUWBOUW VILLA IN TORRE DE LA HORADADA
Nieuwbouw villa in residentieel complex met gemeenschappelijk zwembad in Torre de la Horadada gelegen op 800m van het strand.
Villa heeft 4 slaapkamers, 3 badkamers, open keuken met zithoek, inbouwkasten, terras, privé solarium, tuin en parkeerplaats.
Torre de la Horadada ligt ten zuiden van Alicante op een prachtige locatie aan de kust.
De prachtige stranden van Torre de la Horadada en Mil Palmeras hebben fijn zand en een mooie boulevard.
Er zijn veel restaurants, bars en winkels, ook watersporten, duiken en snorkelen.
Het heeft goede verbindingen op slechts 40 minuten van de luchthavens van Alicante en Murcias Corvera, met grote commerciële winkelcentra en meerdere golfbanen allemaal binnen handbereik.

































